
Tágas, több hálószobás családi otthon

Modern, esztétikus megjelenés

Tartós, energiatakarékos szerkezet

Kiváló ár-érték arány hosszú távra

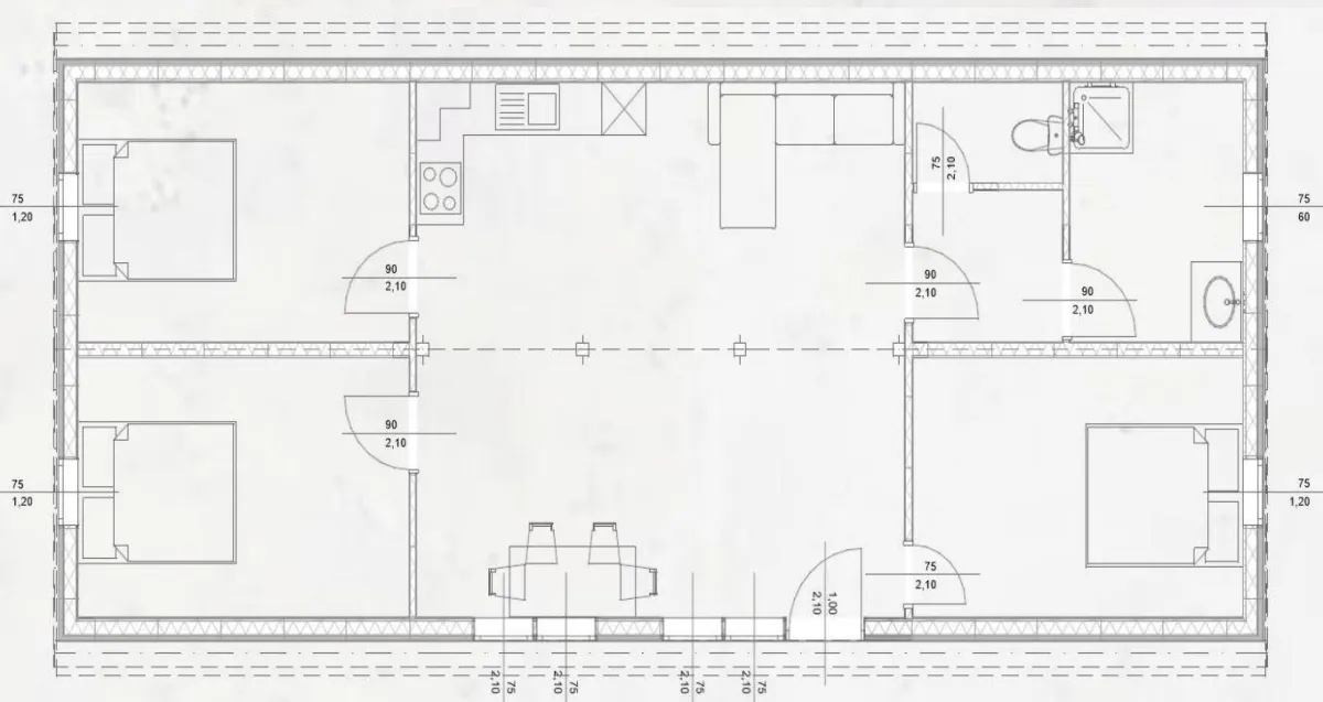
A 100 m²-es ház a kényelmes családi élet tökéletes tere. Tágas nappali, több hálószoba és modern fürdőszoba biztosítja, hogy minden családtag megtalálja benne a saját helyét. A könnyűszerkezetes technológia gyors építést, alacsony fenntartási költséget és modern megjelenést garantál. Ez a ház valóban a jövő otthona – praktikus, időtálló és otthonos.






Külső főfal: 38db x 118.000Ft
Külső főfal 120-as ablakhoz: 7db x 58.000Ft
Külső főfal 40-es ablakhoz: 1db x 102.000Ft
Külső főfal 100-as ajtóhoz: 1db x 110.000Ft
Külső főfal 200-as ajtóhoz: 2db x 44.000Ft
Válaszfal: 13db x 65.000Ft
Belső főfal: 11db x 75.000Ft
Válaszfal,75-ös ajtóhoz: 2db x 38.000Ft
Válaszfal,90-es ajtóhoz: 4db x 45.000Ft
Padlóelem: 38db x 120.000Ft
Födémelem: 38db x 76.000Ft
Tetőelem: 38db x 90.000Ft (300)
Oromfal: 4db x 90.000Ft (300)
Sarokelem: 4db x 117.000Ft
Előregyártott elemek: 18.812.000Ft
Nyílászárók:
Ablakok:
75x40 /buk-nyil/ 42.000Ft/db x1=42.000Ft
75x120 /buk-nyil/ 65.000Ft/db x7=455.000Ft
75x200 /fix/ 60.000Ft/db x2=120.000Ft
Ajtók:
75x210 /beltéri/ 60.000Ft/db x2=120.000Ft
100x210 /kültéri/ 202.000Ft/db x1=202.000Ft
90x210 /beltéri/ 85.000Ft/db x4=340.000Ft
Nyílászárók: 1.279.000Ft
Munkadíj (25.000 Ft/m²), ami az alábbi tételeket tartalmazza:
- az épület összeállítása a megfelelő előkészületek után
- a belső munkálatok előkészítése / festés, burkolás, stb ...
- a munkaterület tiszta, hulladékmentes átadása
- alap villanyszerelés / 1 db kapcsoló és 2 db dugaszoló aljzat kialakítása (2026.március elsejéig aláírt megbízói szerződés esetén!!!)
Munkadíj: 2.500.000Ft (25.000Ft / m2)
Összesen: 22.591.000Ft (225.910Ft / m2)
A házak szerkezetének felállítását mi vállaljuk 3-7 nap alatt.

