
Tágasabb tér, kényelmes élettér családoknak

Letisztult, modern dizájn

Energiatakarékos és fenntartható megoldás

Gyorsan felépíthető, mégis tartós szerkezet

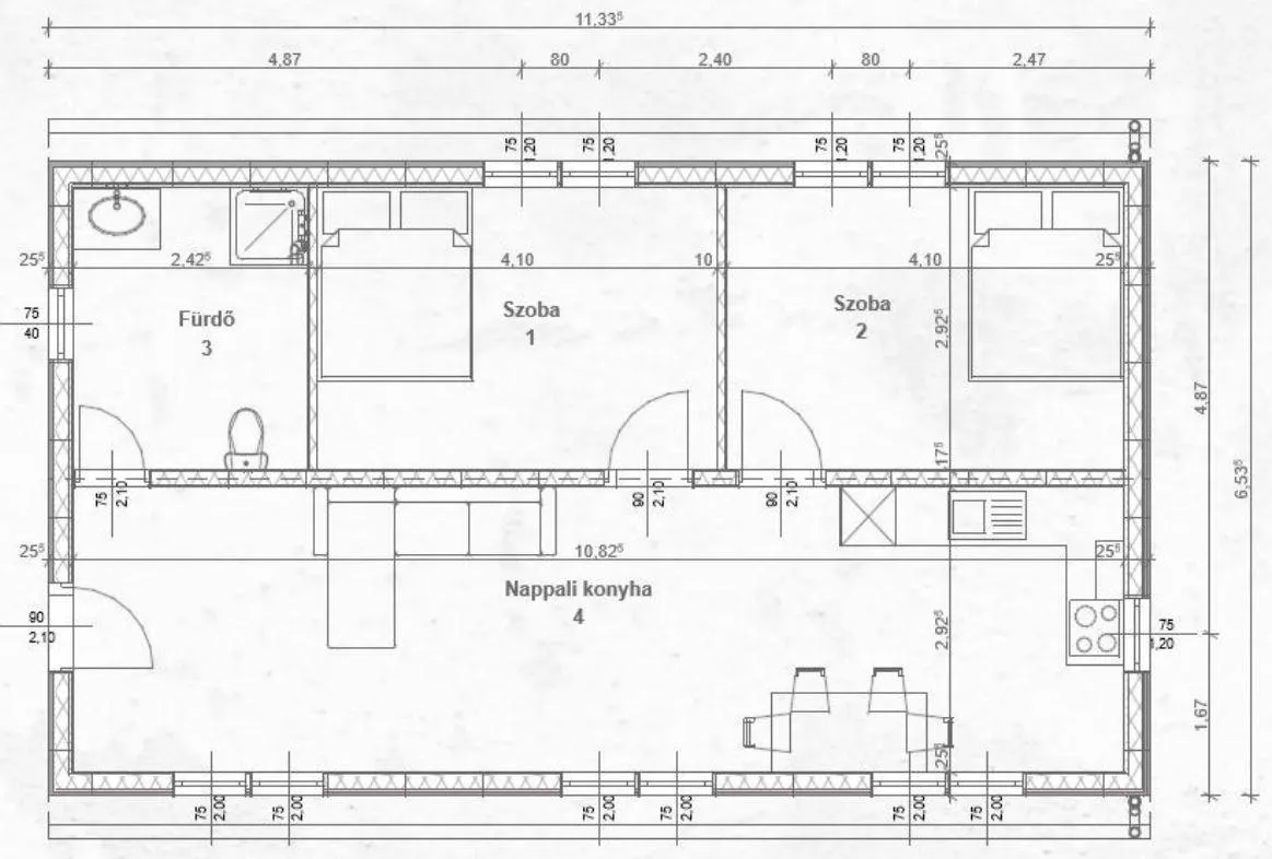
A 74 m²-es ház ideális választás azoknak, akiknek fontos a kényelem és a tágas tér. A ház modern stílusa és jól kihasznált belső elrendezése biztosítja a kényelmes mindennapokat. Legyen szó állandó otthonról vagy hétvégi házról, ez a modell tökéletesen illeszkedik a modern élet igényeihez.






Külső főfal: 26 db x 118.000 Ft
Külső főfal 200-as ablakhoz: 6 db x 44.000 Ft
Külső főfal 120-as ablakhoz: 5 db x 58.000 Ft
Külső főfal 40-es ablakhoz: 1 db x 102.000 Ft
Külső főfal 90-es ajtóhoz: 1 db x 100.000 Ft
Sarokelem: 4 db x 117.000 Ft
Oromfal: 4 db x 85.000 Ft (22,5º)
Válaszfal: 8 db x 65.000 Ft
Válaszfal 75-ös ajtóhoz: 1 db x 38.000 Ft
Válaszfal 90-es ajtóhoz: 2 db x 45.000 Ft
Belső főfal: 11 db x 75.000 Ft
Padló elem: 28 db x 120.000 Ft
Födémelem: 28 db x 76.000 Ft
Tetőelem: 28 db x 85.000 Ft (22,5º)
Előregyártott elemek: 13.973.000 Ft
Nyílászárók:
Ablakok:
75X40 /buk-nyíl/ 42.000Ft/db x1=42.000 Ft
75x120 /buk-nyíl/ 65.000Ft/db x5=325.000 Ft
75x200 /fix/ 60.000Ft/db x3=180.000 Ft
75x200 /buk-nyíl/ 115.000Ft/db x3=345.000 Ft
Ajtók:
90x210 /kültéri/ 190.000Ft/db x1=190.000 Ft
75x210 /beltéri/ 60.000Ft/db x2=120.000 Ft
90x210 /beltéri/ 85.000Ft/db x2=170.000 Ft
Nyílászárók: 1.372.000Ft
Munkadíj (25.000 Ft/m²), ami az alábbi tételeket tartalmazza:
- az épület összeállítása a megfelelő előkészületek után
- a belső munkálatok előkészítése / festés, burkolás, stb ...
- a munkaterület tiszta, hulladékmentes átadása
- alap villanyszerelés / 1 db kapcsoló és 2 db dugaszoló aljzat kialakítása (2026.március elsejéig aláírt megbízói szerződés esetén!!!)
Munkadíj: 1.850.000Ft (25.000Ft / m2)
Összesen: 17.195.000Ft (232.364Ft / m2)
A házak szerkezetének felállítását mi vállaljuk 3-7 nap alatt.

